Willifield WayHampstead Garden Suburb, NW11
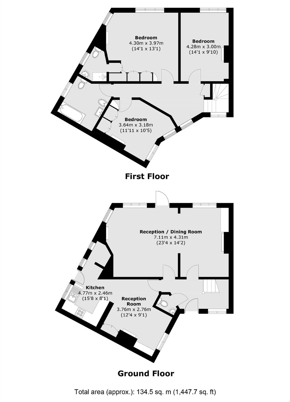
£1,100,000 Sold- 3 Bedrooms
- 2 Bathrooms
- 2 Receptions
Designed by C M Crickmer and listed as Grade II by English Heritage. A particularly spacious (1,447 sq ft) cottage with beautiful garden, kitchen/breakfast room, generous sized reception, three double bedrooms, two bathrooms and a guest WC.
Buying or Selling? We've successfully sold this property, but if you are looking for something similar or have a property to sell, please contact us, we'd be delighted to hear from you.
Hampstead Estate Agents
56 Heath Street,
Hampstead,
London,
NW3 1DL
Call us 7 days a week 8am-8pm
- Sales: 020 7433 0273