Sunna GardensLower Sunbury, TW16
£699,950- 3 Bedrooms
- 1 Bathroom
- 2 Receptions
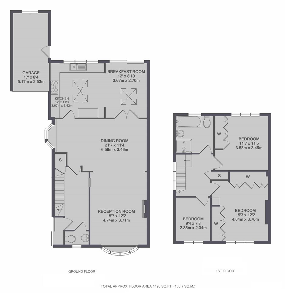
A spacious three bedroom semi-detached home with off-street parking, a private garden and a garage. The extended ground floor has created a flexible layout which is perfect for family fun and entertaining. There is the added bonus of no forward chain.
If you want your children to go to the popular Chennestone Primary School this is the house for you, with the back entrance only 50m away. The River Thames, riverside pubs, local village shops and Sunbury Station are all within a mile.
Tenure: Freehold
Council Tax Band: F
Information contained within this listing is for guidance only and should be checked and confirmed (prior to proceeding).
Sunbury Estate Agents
22 Thames Street,
Lower Sunbury,
London,
TW16 6AF
Call us 7 days a week 8am-8pm
- Sales: 01932 781 100