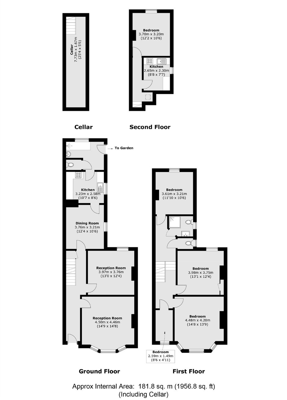
Offered with No Chain, and nestled on the sought-after Reservoir Road, SE4 within Telegraph Hill Conservation Area, this substantial four-bedroom Victorian terraced house offers an exceptional opportunity for buyers looking to create their dream home or a rewarding investment project. Requiring full refurbishment throughout, the property provides a blank canvas for complete modernisation and customisation, allowing buyers to reimagine the space to their own tastes and requirements.
Spanning approximately 1,956 sq ft over three generous floors, the property boasts classic period proportions, high ceilings, and a wealth of original features ready to be restored. The layout, arranged over three storey's, includes three reception rooms, kitchen with scope for side return and rear extension (subject to relevant consents), two bathrooms, large west facing private garden as well as a cellar. There is further scope for loft conversion, again subject to consent.
Reservoir RoadTelegraph Hill, SE4
£925,000- 4 Bedrooms
- 2 Bathrooms
- 2 Receptions
Read more
New Cross Estate Agents
256 New Cross Road,
New Cross,
London,
SE14 5PL
Call us 7 days a week 8am-8pm
- Sales: 020 7313 3660