Linden AvenueKensal Rise, NW10
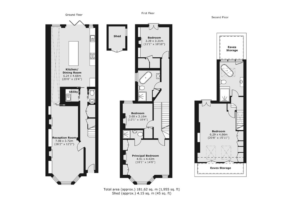
£2,000,000- 4 Bedrooms
- 3 Bathrooms
- 1 Reception
An immaculately presented mid terraced Victorian four bedroom family home, having recently been refurbished throughout to a very high standard, and located in the heart of Kensal Rise.
Linden Avenue is a residential street located moments from the shops, cafes and amenities of Chamberlayne Road and College Road. Queen's Park is nearby, and the closest station is Kensal Rise under a quarter of a mile.
Tenure: Freehold
Council Tax Band: D
Information contained within this listing is for guidance only and should be checked and confirmed (prior to proceeding).
Kensal Rise & Queen's Park Estate Agents
62 Chamberlayne Road,
Kensal Rise,
London,
NW10 3JJ
Call us 7 days a week 8am-8pm
- Sales: 020 8600 3100