Haydons RoadWimbledon, SW19
£850,000 Sold- 3 Bedrooms
- 2 Bathrooms
- 2 Receptions
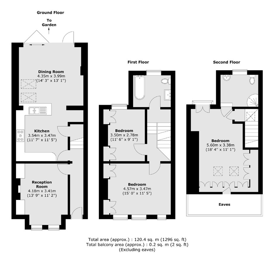
A three double bedroom, two bathroom Victorian terrace house, extended in to the loft and to the rear. The garden stretches near fifty feet and is landscaped to a beautiful standard.
Buying or Selling? We've successfully sold this property, but if you are looking for something similar or have a property to sell, please contact us, we'd be delighted to hear from you.
Wimbledon Estate Agents
12 The Broadway,
Wimbledon,
London,
SW19 1RF
Call us 7 days a week 8am-8pm
- Sales: 020 8545 8580