Arkwright RoadHampstead, NW3
£7,250,000- 6 Bedrooms
- 4 Bathrooms
- 2 Receptions
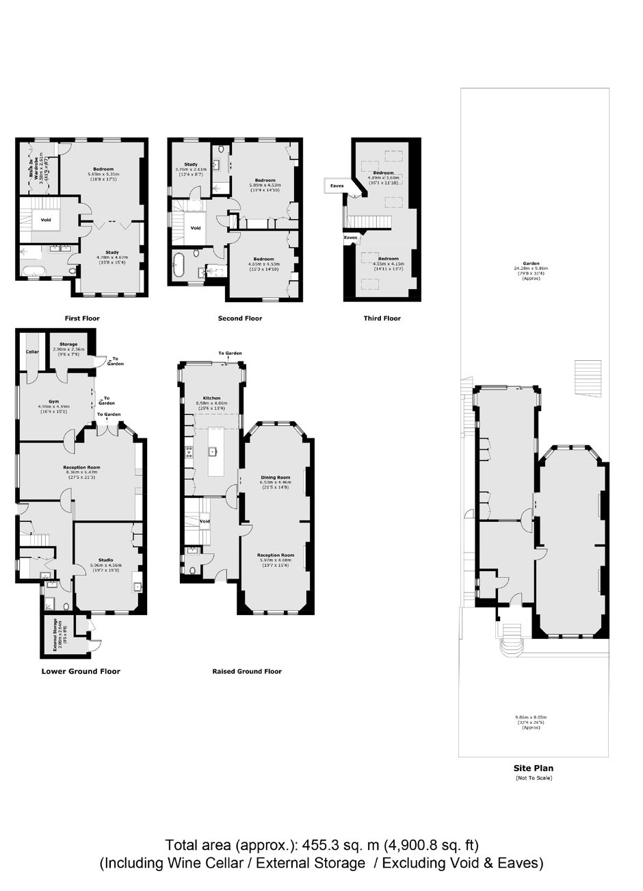
At approximately 5028 sq ft, including eaves, is this elegant Victorian, red-brick, semi-detached home, located on one of Hampstead's most prestigious streets. Following a comprehensive four-year programme of works, the house presents a flawless blend of period sophistication and contemporary design.
Arkwright Road is moments from Hampstead Village with its cafés, restaurants and renowned schools including UCS and South Hampstead. Finchley Road & Frognal Overground is 130m away, with Hampstead and Finchley Road stations (Northern, Jubilee & Metropolitan) close by.
Tenure: Freehold
Council Tax Band: H
Information contained within this listing is for guidance only and should be checked and confirmed (prior to proceeding).
Hampstead Estate Agents
56 Heath Street,
Hampstead,
London,
NW3 1DL
Call us 7 days a week 8am-8pm
- Sales: 020 7433 0273