Waldo RoadCollege Park, NW10
£1,600,000- 5 Bedrooms
- 4 Bathrooms
- 1 Reception
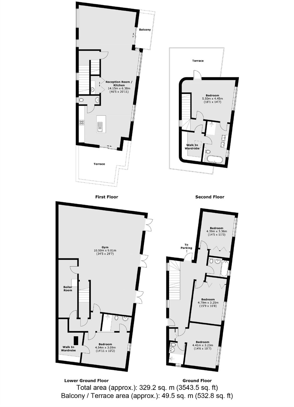
A truly unique and impressive five double bedroom modern build, arranged over four floors, benefitting from having two South-facing roof terraces and a balcony, a garden on the ground floor, private off-street parking for two vehicles, and is available chain-free.
Waldo Road is a residential tree-lined street, with access to local amenities in both Kensal Rise, Queen's Park, and Notting Hill. Transport links include Kensal Green (Bakerloo & Overground) and Willesden Junction (Bakerloo & Overground).
Tenure: Freehold
Council Tax Band: F
Information contained within this listing is for guidance only and should be checked and confirmed (prior to proceeding).
Kensal Rise & Queen's Park Estate Agents
62 Chamberlayne Road,
Kensal Rise,
London,
NW10 3JJ
Call us 7 days a week 8am-8pm
- Sales: 020 8600 3100