The RidgewayFinchley, N3
£1,150,000- 5 Bedrooms
- 4 Bathrooms
- 2 Receptions
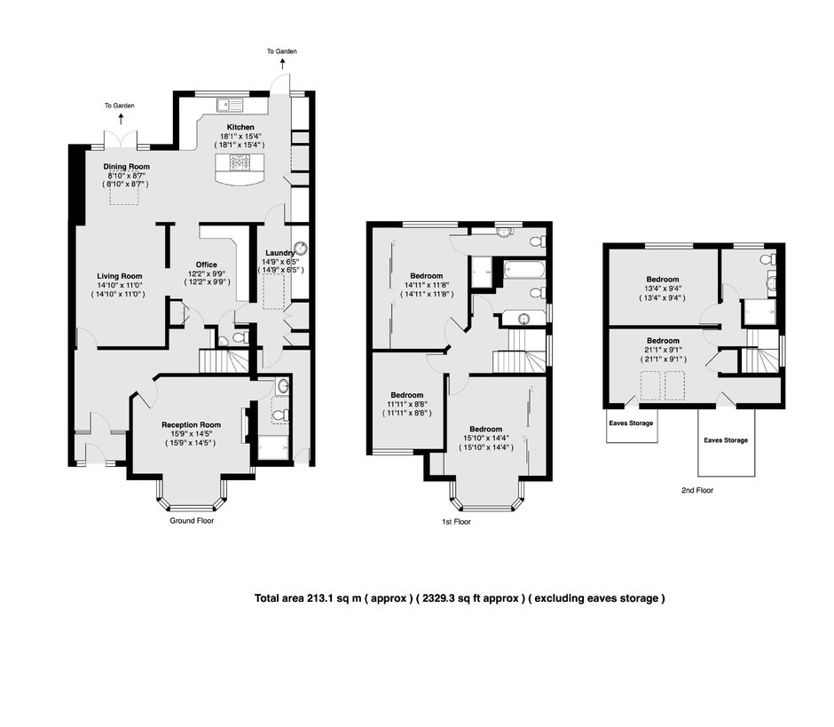
An impressive five bedroom semi-detached family home offering flexible accommodation arranged over three floors. The property comes complete with multiple reception rooms, four bathrooms, just under 2,500 sq ft of living space and driveway.
This family house is located within minutes of Finchley Central and local amenities that can be found along Ballards Lane. Local, highly regarded schooling with outstanding Ofsted ratings include Manorside Primary and Moss Hall Infant,
Tenure: Freehold
Council Tax Band: G
Information contained within this listing is for guidance only and should be checked and confirmed (prior to proceeding).
Finchley Estate Agents
126 Ballards Lane,
Finchley,
London,
N3 2PA
Call us 7 days a week 8am-8pm
- Sales: 020 8742 4180