Pursers Cross RoadFulham, SW6
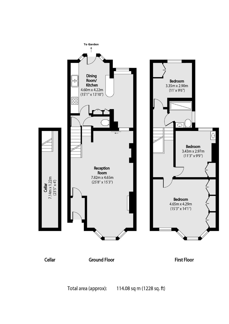
£1,500,000 Sold- 3 Bedrooms
- 1 Bathroom
- 1 Reception
First time to the market since 1974 is a rare opportunity to purchase this three bedroom house located in the heart of Parsons Green, on an extremely sought after street. The property offers high ceilings, period features and potential to extend (STPP) with a private south west facing garden.
Buying or Selling? We've successfully sold this property, but if you are looking for something similar or have a property to sell, please contact us, we'd be delighted to hear from you.
Parsons Green Estate Agents
656 Fulham Road,
Parsons Green,
London,
SW6 5RX
Call us 7 days a week 8am-8pm
- Sales: 020 7731 5115