Hogarth WayHampton, TW12
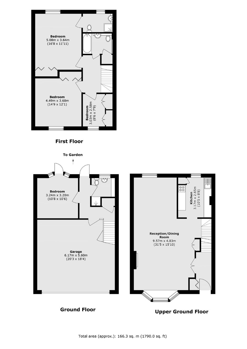
£1,050,000 Sold- 4 Bedrooms
- 3 Bathrooms
- 2 Receptions
This outstanding four bedroom property is set within private grounds known as Garrick's Estate. This still houses Garrick's Villa which was the country retreat of the renowned 18th Century actor David Garrick.
Buying or Selling? We've successfully sold this property, but if you are looking for something similar or have a property to sell, please contact us, we'd be delighted to hear from you.
Hampton Estate Agents
93 Station Road,
Hampton,
Middlesex,
TW12 2BD
Call us 7 days a week 8am-8pm
- Sales: 020 8255 7777