Browning AvenueEaling, W7
£650,000- 2 Bedrooms
- 1 Bathroom
- 2 Receptions
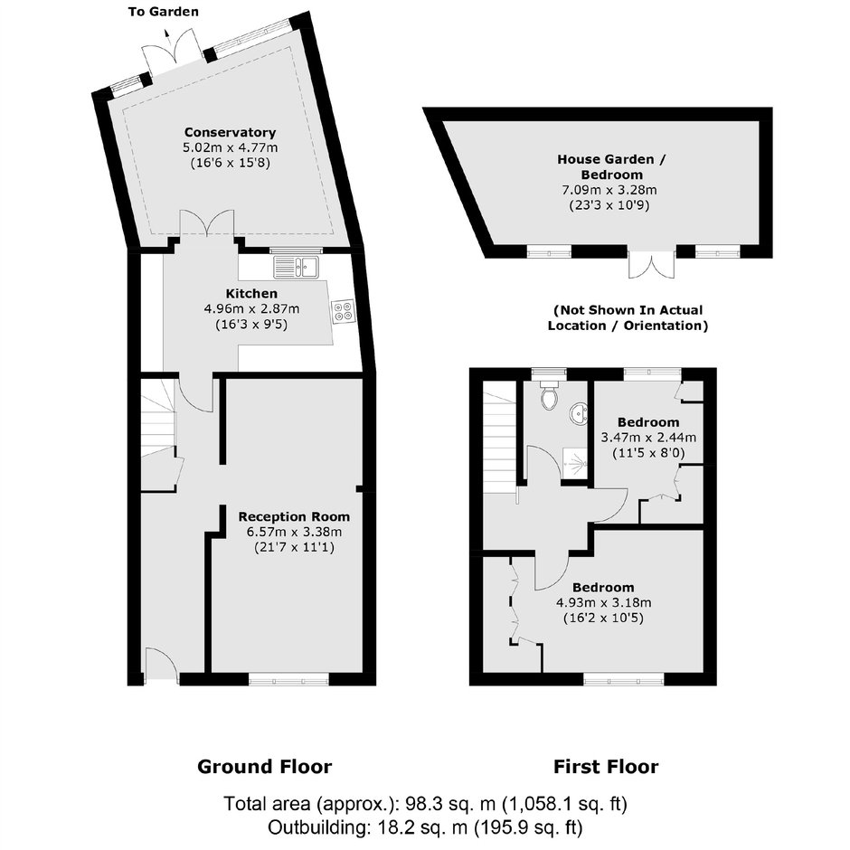
A rare opportunity to acquire a mid-terraced family home in the desirable Hanwell area with no onward chain. This two bedroom property is in need of modernisation throughout, it is an ideal first family home with potential to extend in to the loft. It features a spacious conservatory, a separate kitchen, and a garden room providing ample space for comfortable family living
Centrally located with access to local schools of Hobbayne Primary and Drayton Manor. There is easy access to the shops of Greenford Avenue along with Hanwell station with the Elizabeth Line taking you across town, and National Rail services.
Tenure: Freehold
Council Tax Band: D
Information contained within this listing is for guidance only and should be checked and confirmed (prior to proceeding).
Ealing Estate Agents
2 New Ealing Broadway,
Ealing,
London,
W5 2NU
Call us 7 days a week 8am-8pm
- Sales: 020 8810 0909