Crescent LaneClapham, SW4

£950,000 Sold
  • 2 Bedrooms
  • 1 Bathroom
  • 1 Reception

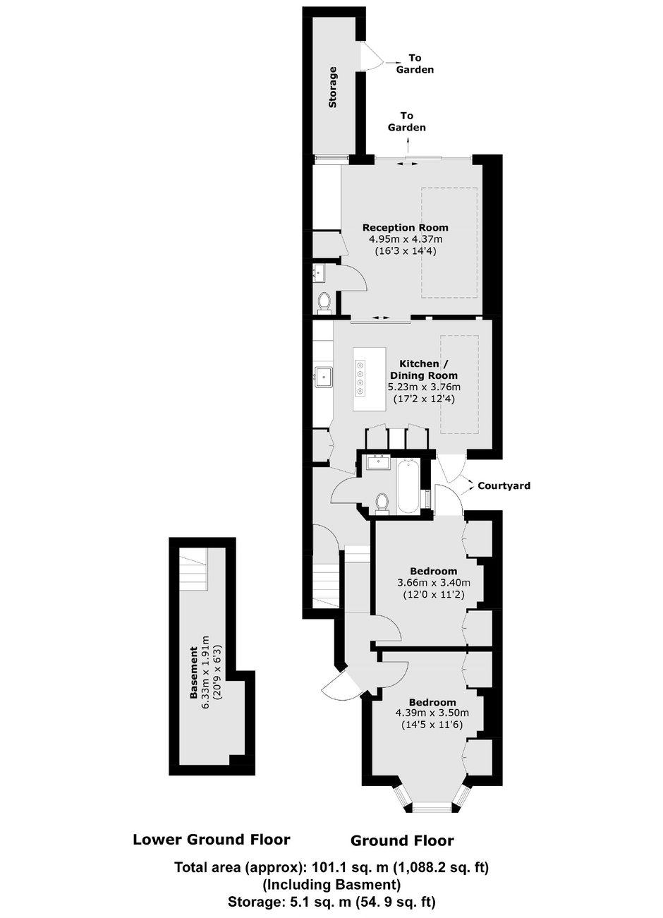
This truly impressive, ground-floor period conversion is a testament to sophisticated living and meticulous design, providing an abundance of bright and airy living and entertaining space with a private garden.

Arranged to include a semi open-plan reception room with a comfortable seating area, fitted shelving and desk, an adjoining contemporary kitchen featuring a range of integrated appliances, a central island and ample room for a large dining table. The two spaces can be separated by partition pocket doors and also include a utility cupboard and toilet. Large-format sliding doors frame a private, low-maintenance garden. Moving towards the front of the property, there are two spacious double bedrooms, both with bespoke fitted wardrobes and intricate ceiling plasterwork, and a family bathroom. Offered to the market with a share of freehold.

Buying or Selling? We've successfully sold this property, but if you are looking for something similar or have a property to sell, please contact us, we'd be delighted to hear from you.

Read more

Clapham Estate Agents

28 Abbeville Road,
Clapham,
London,
SW4 9NG

Call us 7 days a week 8am-8pm