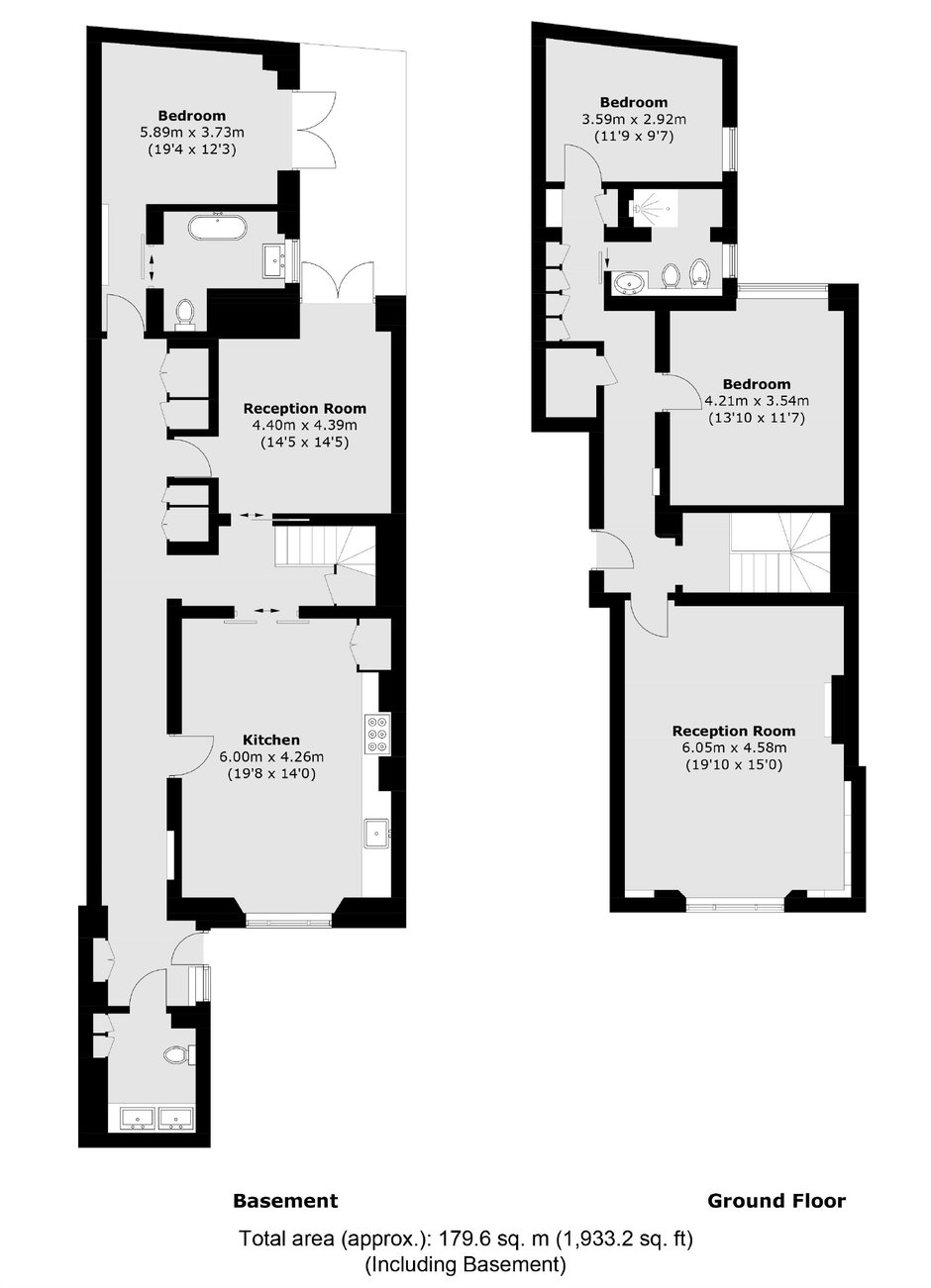
Cornwall GardensSouth Kensington, SW7
£2,500,000- 3 Bedrooms
- 2 Bathrooms
- 2 Receptions
Set within a handsome Victorian period conversion on the prestigious Cornwall Gardens, this beautifully presented maisonette offers a rare combination of space, charm, and privacy.
Located moments from the amenities and transport links of Gloucester Road and South Kensington, this charming home also offers access to the stunning Cornwall Gardens, one of London's most desirable communal garden squares.
Tenure: Leasehold
Council Tax Band: H
Information contained within this listing is for guidance only and should be checked and confirmed (prior to proceeding).
South Kensington & Knightsbridge Estate Agents
144 Old Brompton Road,
South Kensington,
London,
SW7 4NR
Call us 7 days a week 8am-8pm
- Sales: 020 7838 0108