Carlisle PlaceWestminster, SW1P
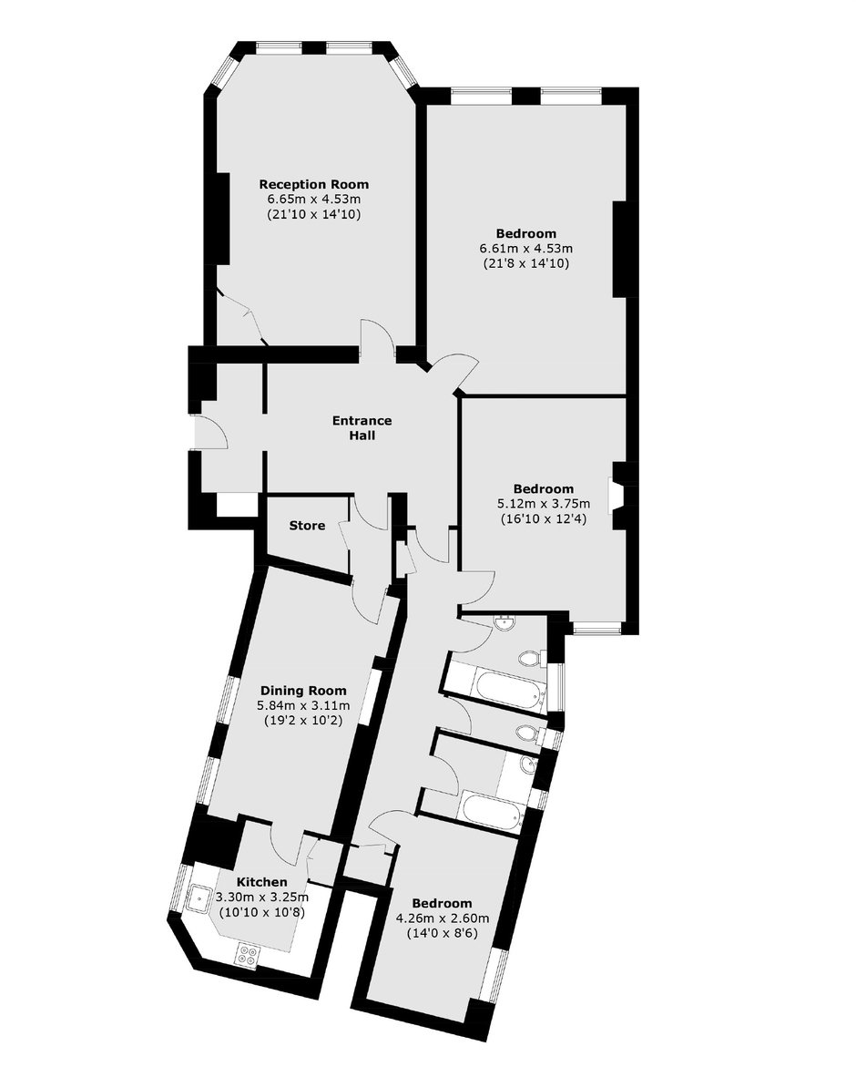
£1,400,000- 3 Bedrooms
- 2 Bathrooms
- 2 Receptions
A rare opportunity to acquire this remarkable three bedroom, two bathroom ground floor apartment located within a highly desirable mansion block, situated a stones throw from Victoria station. This impressive purpose-built block reputed to be one of the first mansion-style developments built in Westminster.
Carlisle Place is located between Victoria Station and Westminster Cathedral. Transport links are excellent, with Victoria transport hub offering a direct link to Gatwick Airport and trains to the south and the south east.
Tenure: Leasehold Lease Years Remaining: 128
Service Charge: £6,000 (Yearly)
Council Tax Band: G
Information contained within this listing is for guidance only and should be checked and confirmed (prior to proceeding).
Westminster Estate Agents
50 Churton Street,
Westminster,
London,
SW1V 2LP
Call us 7 days a week 8am-8pm
- Sales: 020 7590 9570