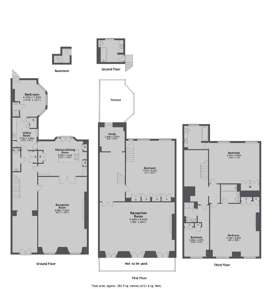
Bryanston SquareMarylebone, W1H
£5,500 Pw / £23,833 Pcm (Tenant Info)- 5 Bedrooms
- 5 Bathrooms
- 2 Receptions
This beautifully refurbished and classically designed Georgian town house is arranged over three floors with almost 4,000 sq ft of accommodation. *The furniture in the photographs is virtually staged*
Bryanston Square is considered one of London's most desirable Garden Squares, offering resident's exclusive access of private gardens in the heart of central London.
Security Deposit: £33,000
Council Tax Band: H
Information contained within this listing is for guidance only and should be checked and confirmed (prior to proceeding).
Marylebone Estate Agents
55 Weymouth Street,
Marylebone,
London,
W1G 8NJ
Call us 7 days a week 8am-8pm
- Lettings: 020 7224 5545