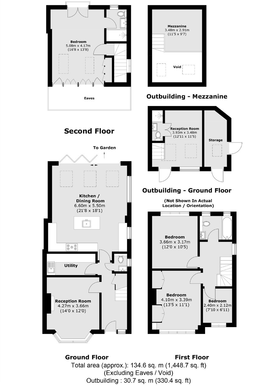
Ravensbourne RoadEast Twickenham, TW1
£1,208 Pw / £5,250 Pcm Let (Tenant Info)- 4 Bedrooms
- 3 Bathrooms
- 2 Receptions
Situated on a quiet road, a stones throw from Ducks Walk, is this stylish and spacious four bedroom family home.
Letting or Renting? We've successfully let this property, but if you are looking for something similar or have a property to let, please contact us, we'd be delighted to hear from you.
St Margarets Estate Agents
1 Chertsey Road,
St Margarets,
London,
TW1 1LR
Call us 7 days a week 8am-8pm
- Lettings: 020 8744 9700