Vaughan WayWapping, E1W
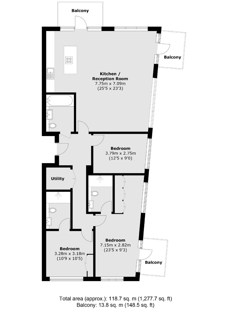
£1,269 Pw / £5,499 Pcm (Tenant Info)- 3 Bedrooms
- 3 Bathrooms
- 1 Reception
Three bedroom, three bathroom property located on the sixteenth floor. Offered fully furnished to a high standard, the property also benefits from three private balconies
Located within easy reach of Tower Gateway DLR, Tower Hill and Wapping stations. As well as being within walking distance of The City and London Bridge.
Security Deposit: £7,614
Council Tax Band: H
Information contained within this listing is for guidance only and should be checked and confirmed (prior to proceeding).
Wapping Estate Agents
123 Wapping High Street,
Wapping,
London,
E1W 3NX
Call us 7 days a week 8am-8pm
- Lettings: 020 7650 5351