Queen Elizabeth StreetShad Thames, SE1

£1,611 Pw / £7,000 Pcm Let (Tenant Info)
  • 3 Bedrooms
  • 3 Bathrooms
  • 1 Reception

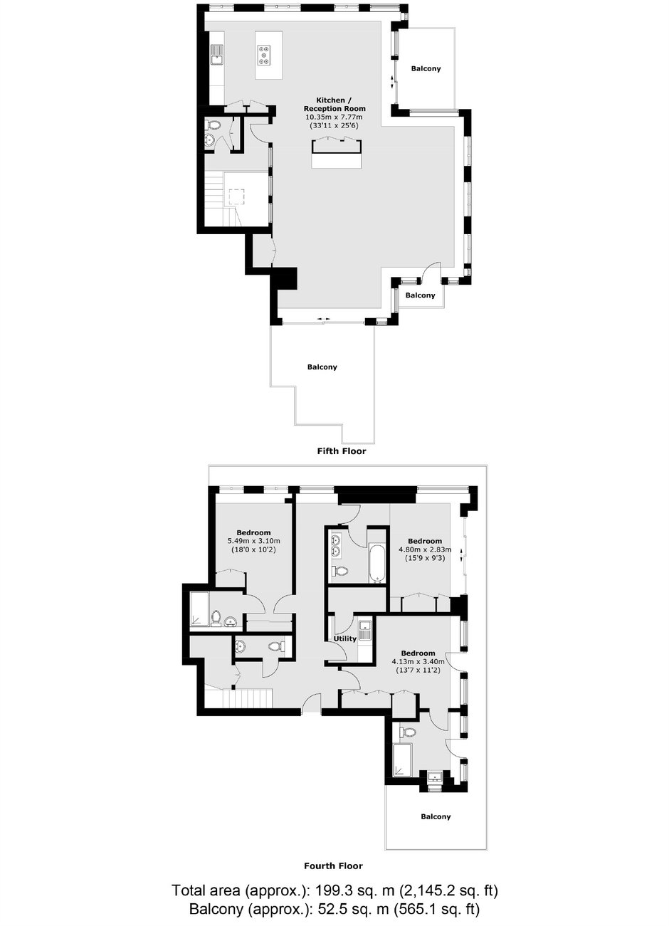
A brand new split level penthouse apartment arranged over 2300 square feet and located moments away from the River Thames. This warehouse conversion has three double bedrooms all with en-suite bathrooms and additional WCs both upstairs and downstairs. On the first floor the property also offers a utility room and large wrap around balcony and the second floor includes a roof terrace with direct views of The Shard & Tower Bridge, additional balcony and open-plan kitchen living area.

Letting or Renting? We've successfully let this property, but if you are looking for something similar or have a property to let, please contact us, we'd be delighted to hear from you.

Read more

Tower Bridge Estate Agents

50 Shad Thames,
Tower Bridge,
London,
SE1 2LY

Call us 7 days a week 8am-8pm