Pont StreetSouth Kensington, SW1X
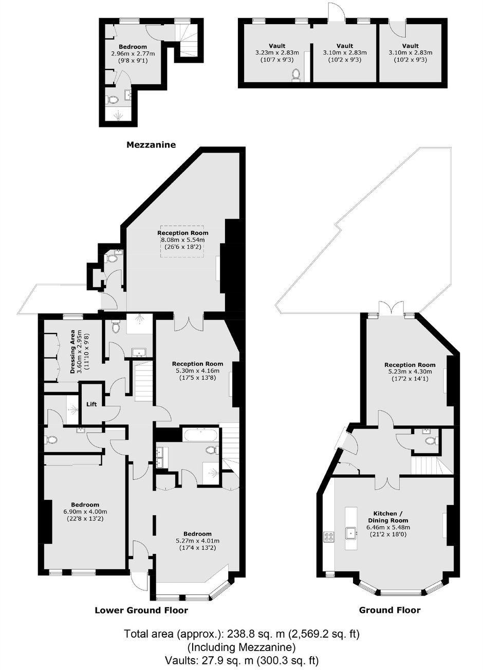
£5,000 Pw / £21,667 Pcm (Tenant Info)- 4 Bedrooms
- 4 Bathrooms
- 2 Receptions
An exceptional residence available to rent in Knightsbridge, set within a well-maintained, portered building and featuring a private garden. The property has been newly refurbished to a high standard and offers spacious accommodation comprising two reception rooms, four double bedrooms, and four contemporary bathrooms.
Pont Street is ideally situated in the heart of Knightsbridge, just off Sloane Street, and within close proximity to the upscale boutiques and fine dining establishments of Brompton Road and Sloane Square.
Security Deposit: £30,000
Council Tax Band: H
Information contained within this listing is for guidance only and should be checked and confirmed (prior to proceeding).
South Kensington & Knightsbridge Estate Agents
144 Old Brompton Road,
South Kensington,
London,
SW7 4NR
Call us 7 days a week 8am-8pm
- Lettings: 020 7244 7711