Petherton RoadPetherton Road, N5
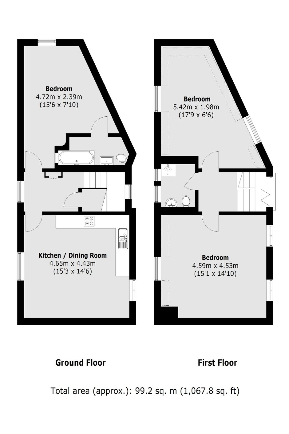
£898 Pw / £3,900 Pcm (Tenant Info)- 3 Bedrooms
- 2 Bathrooms
- 1 Reception
A split level three double bedroom with an open plan kitchen reception room, wood flooring and two bathrooms
Petherton Road is just a short walk from Clissold Park and Newington Green, residents have a huge selection of local shops, cafe's and Restaurants. Canonbury Overground Station is the closet station with Highbury and Islington Underground Station also within easy reach.
Security Deposit: £4,500
Council Tax Band: D
Information contained within this listing is for guidance only and should be checked and confirmed (prior to proceeding).
Islington Estate Agents
76 Upper Street,
Islington,
London,
N1 0NU
Call us 7 days a week 8am-8pm
- Lettings: 020 7483 6374