Lynn RoadClapham South, SW12
£633 Pw / £2,750 Pcm (Tenant Info)- 2 Bedrooms
- 1 Bathroom
- 1 Reception
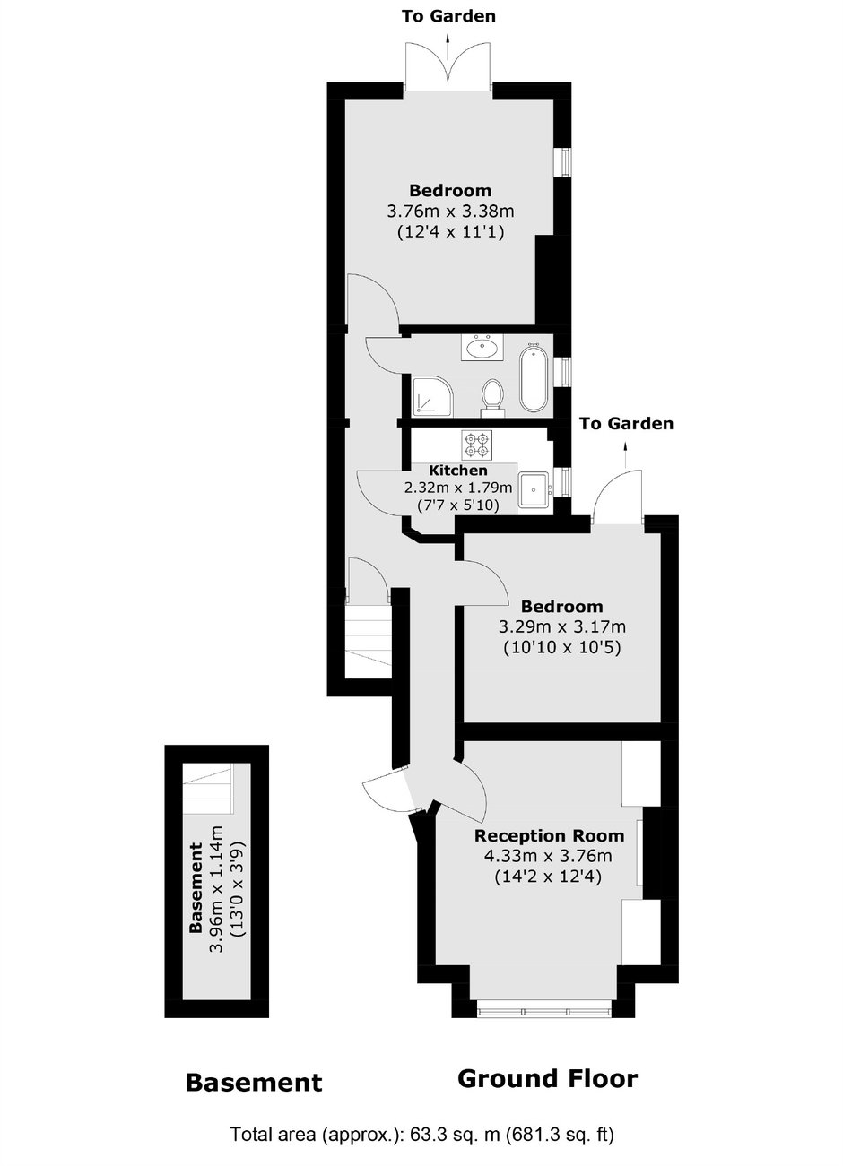
Set on the ground floor, this attractive two bedroom flat has been recently decorated throughout. Offering a large reception room with plantation shutters and space for dining, a separate modern kitchen and two double bedroom, both with access to a private garden.
Lynn Road is a residential road close to Clapham South tube station and Clapham Common itself. Along with cafés, quirky bars and restaurants nearby.
Security Deposit: £3,173
Council Tax Band: D
Information contained within this listing is for guidance only and should be checked and confirmed (prior to proceeding).
Clapham South & Balham Estate Agents
9 Cavendish Parade,
Clapham,
London,
SW4 9DP
Call us 7 days a week 8am-8pm
- Lettings: 020 8675 6750