Ennismore GardensSouth Kensington, SW7
£3,500 Pw / £15,167 Pcm (Tenant Info)- 4 Bedrooms
- 4 Bathrooms
- 2 Receptions
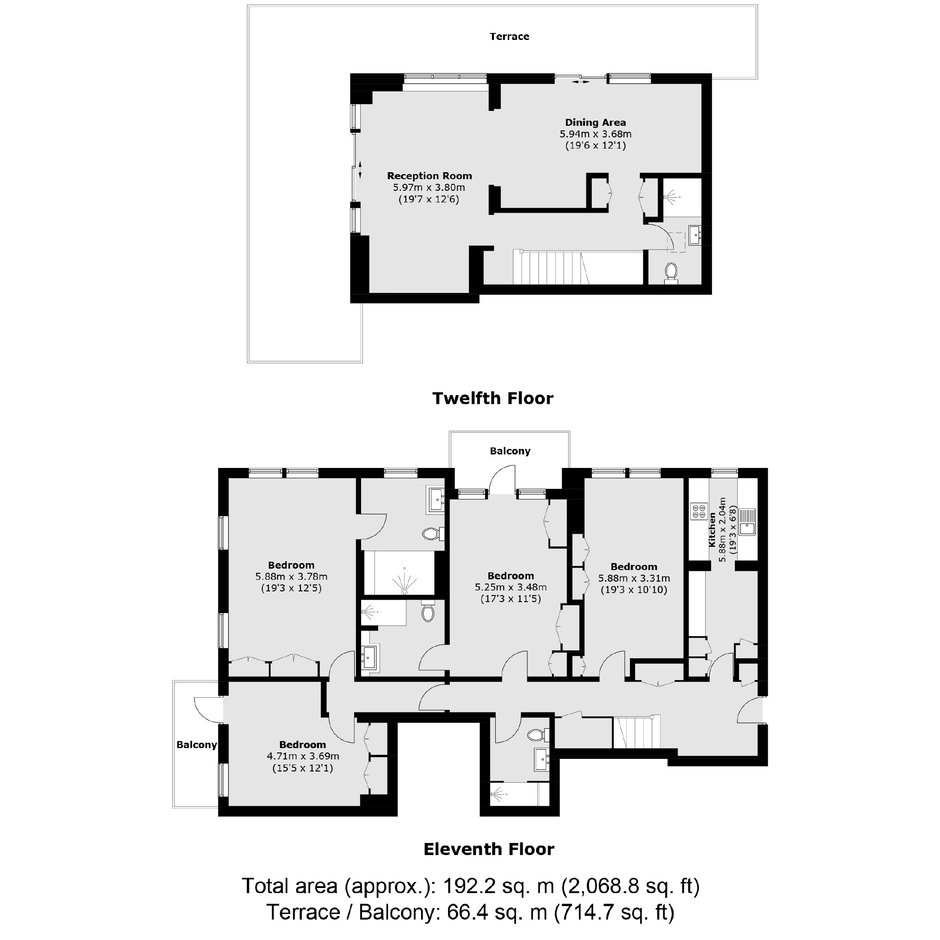
Located in the prestigious Ennismore Gardens, this expansive duplex apartment occupies the 11th and 12th floors of a well-maintained portered building with lift access. Offering approximately 2,022 sq ft of meticulously arranged living space, the residence enjoys a prime position in the heart of Knightsbridge.
Kingston House South occupies a premier position directly opposite Hyde Park, affording uninterrupted views of its verdant landscape. Ideally located within walking distance of Knightsbridge and South Kensington, the property offers immediate access to a wealth of world-class amenities, including Harrods, the Royal Albert Hall, and esteemed cultural institutions such as the Natural History Museum.
Security Deposit: £21,000
Council Tax Band: H
Information contained within this listing is for guidance only and should be checked and confirmed (prior to proceeding).
South Kensington & Knightsbridge Estate Agents
144 Old Brompton Road,
South Kensington,
London,
SW7 4NR
Call us 7 days a week 8am-8pm
- Lettings: 020 7244 7711